GALLERY
PROPERTY DETAIL
Key Details
Sold Price $200,99028.2%
Property Type Single Family Home
Sub Type Detached
Listing Status Sold
Purchase Type For Sale
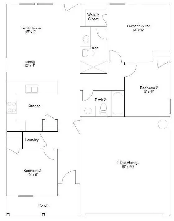
Square Footage 1, 084 sqft
Price per Sqft $185
Subdivision Anniston
MLS Listing ID 60535402
Sold Date 05/12/25
Style Traditional
Bedrooms 3
Full Baths 2
Construction Status Under Construction
HOA Fees $15/ann
HOA Y/N Yes
Year Built 2025
Tax Year 2023
Property Sub-Type Detached
Location
State TX
County Harris
Area Katy - Old Towne
Building
Lot Description Subdivision
Story 1
Entry Level One
Foundation Slab
Builder Name Lennar
Sewer Public Sewer
Water Public
Architectural Style Traditional
Level or Stories One
New Construction Yes
Construction Status Under Construction
Interior
Heating Central, Gas
Cooling Central Air, Electric
Fireplace No
Exterior
Parking Features Attached, Garage
Garage Spaces 2.0
Water Access Desc Public
Roof Type Composition
Private Pool No
Schools
Elementary Schools Youngblood Elementary School
Middle Schools Nelson Junior High (Katy)
High Schools Freeman High School
School District 30 - Katy
Others
HOA Name KRJ Management
Tax ID NA
Ownership Full Ownership
Acceptable Financing Cash, Conventional, FHA, VA Loan
Listing Terms Cash, Conventional, FHA, VA Loan
SIMILAR HOMES FOR SALE
Check for similar Single Family Homes at price around $200,990 in Katy,TX

Active
$329,000
7415 Bridal Ranch DR, Katy, TX 77493
Listed by James Bowen, Broker4 Beds 2 Baths 1,934 SqFt
Active
$275,000
5726 Pampus Prairie RD, Katy, TX 77493
Listed by Nan & Company Properties - Corporate Office (Heights)3 Beds 2 Baths 1,580 SqFt
Active
$229,000
1924 Myrna LN, Katy, TX 77493
Listed by Gingrich Group, LLC3 Beds 2 Baths 1,456 SqFt
CONTACT










